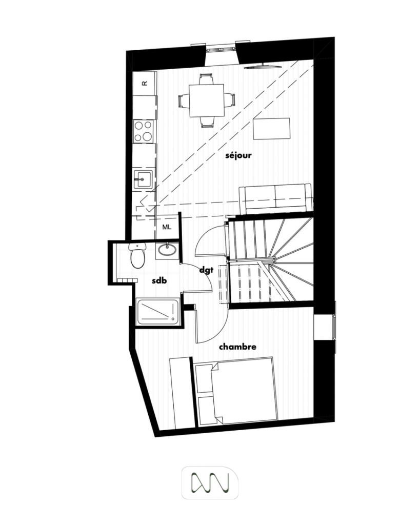
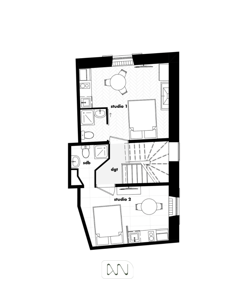
Création logements – Chabeuil

Création de 3 logements dans une maison de village à Chabeuil. Repenser les accès à chaque logement, création de salles de bains et de cuisines dans chacun d’entre eux.