Rénovation complète d’une maison de ville à Chabeuil 26120.
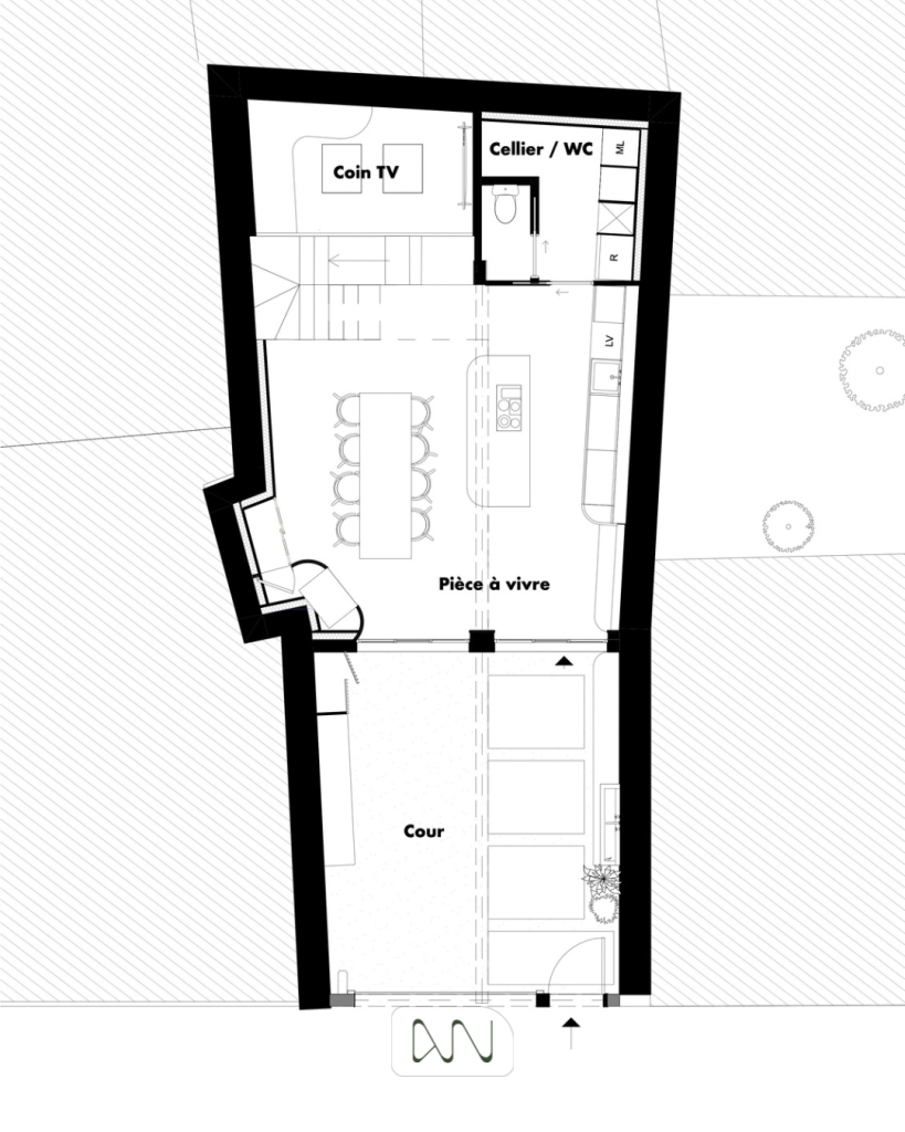
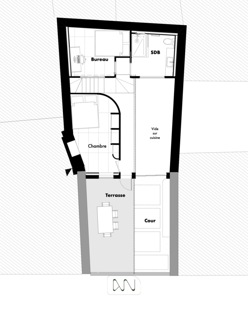
Dans ce projet nous avons réveillé cet ancien garage en un loft alliant contemporain et histoire de son passé. Le défi de faire rentrer la lumière au fond de cette maison mitoyenne par trois côtés est réussit grâce à la conception du projet autour de la double hauteur. La grande verrière verticale visible depuis toutes les pièces de la maison, apporte clarté et modernité tout en ouvrant la vue de la maison. Les murs en pierres, rejointoyés à la chaux contrastent avec la dalle en béton quartzé.
Livraison en 2023 – Mission complète




















